|
- The Village
While some of the earliest cities of the Late Bronze Age (on these early period designations, see the archeological period chart) in the lowlands (coastal region, Jordan Valley) survived into Iron Age I (c. 1200-1000 BC), either as a simple continuation of earlier city-states, or as newly expanded Philistine urban centers (Gaza region), new, essentially rural settlements developed in the hill region and the Beer-Sheba Valley, in various arrangements, representing a variety of subsistence economies. The relatively large number of Iron Age archaeological sites offers a unique opportunity to observe the complex, gradual processes of social change. These sites show us a continuum between semi-nomadic pastoralists and fully sedentary farmers. These sites include encampments with storage pits for the abundant crops obtained by nomadic pastoralists, groups of animal pens as at Giloh, closed settlements as at Beer-Sheba, or large groups of such units as at Tel Masos.
The popularity of village life was not limited to Iron Age I. In Iron Age II (from 1000 to the sixth century BC), the majority of the population (66%) lived in small villages and the rest in settlements (towns, cities) of more than twelve acres. The growth in the tendency to settle in villages began at the end of the Late Bronze Age and the beginning of Iron Age I, and is due to two factors:
- The relative stability and tranquillity brought by the Israelite monarchies reduced the need for fortifications to protect themselves.
- The towns were occupied mainly by members of the state administration, which led to the development of non-residential structures. As a result, most of the population left the cities to settle in villages and farms in the countryside.
The village was therefore the main place to live during the Israelite period.
- Physical Layout
Surveys and excavations show that the villages were located on non-agricultural land. Agricultural land, wherever it was, but especially in the hills, was extremely valuable, as it was the result of a concerted effort to clear trees and stones and build terraces. Contrary to current practice, no farmer would have sacrificed hard-earned farmland for a non-productive purpose such as building a house. That's why villages were built on rocky outcrops or steep slopes, or even on hilltops to provide a degree of defense. However, they were established fairly close to the fields, at no more than walking distance. Most villages were established in previously unsettled areas, although some were built on the ruins of long-abandoned sites. What's more, most villages were located close to country roads that enabled communication with other villages and with the "mother" town. The relationship between a city and its surrounding villages is described in the Bible as that of a mother and her daughters, as repeatedly mentioned in some tribal land allocation lists, as witnessed by Josh 17:11: "Within Issachar and Asher, Manasseh had Beth-shean and its villages, Ibleam and its villages, the inhabitants of Dor and its villages, the inhabitants of En-dor and its villages, the inhabitants of Taanach and its villages, and the inhabitants of Megiddo and its villages (the third is Naphath)."
Several features distinguish Iron Age villages from other settlements such as towns. No village has yet yielded monumental buildings or cult centers that can be interpreted as public. Places of worship must have been located outside villages, in the countryside. The villages were not fortified, although occasionally the houses at the edge of the agglomeration were arranged in a defensive ring. The interiors of these villages show no sign of prior planning. Streets and houses are irregularly laid out, and sometimes open spaces and numerous grain pits are incorporated into the village interior.
Villages were located close to natural, perennial water sources, such as springs, streams and rivers. In the absence of natural water sources, wells were dug to reach the ground-water level; cisterns to collect rainwater were also dug into the rock inside the village.
- Types of Villages
- Ring-shaped Villages

Fig. 2.1: Plan of Izbet Sartah. Courtesy Ze'ev Herzog, Tel Aviv University |
In ring-shaped villages, the houses are arranged in a closed circle or oval, with an open space in the middle that may have been used to house domestic animals. Some researchers believe that these are the biblical villages frequently mentioned in the Book of Joshua. At Izbet Sartah (near Joppa), the ring is made up of houses with large rooms built side by side (fig. 2.1), while at Beer-Sheba, the houses are mainly of the four-room type.
|
- Agglomerated Villages

Fig. 2.2: Plan of Tel Masos. Courtesy Ze'ev Herzog, Tel Aviv University |
Agglomerated villages are characterized by undifferentiated construction on the site, in the form of individual buildings or complexes made up of several houses. Living space is limited, streets are more or less wide and irregular open spaces have been left between housing units. As the houses were located without a plan, the village boundary was left open. Villages of this type have been discovered in Khirbet Raddana (north of Jerusalem), Tel Masos, near Beer-Sheba, and Beer-Sheba.
|
- Farmsteads

Fig. 2.3: Plan of Guilo. Courtesy Ze'ev Herzog, Tel Aviv University |
Farmsteads consist of a single building or a group of buildings surrounded by a wide wall, not for defensive purposes but to provide an enclosure for domestic animals. An example of this type of settlement is Guilo (fig. 2.3), between Hebron and Jerusalem.
|
The physical setting of the village, with its open public spaces, especially near the gate, provided a place for the conduct of public business such as trade and legal proceedings.
Quelques exemples bibliques :
- Deut 21:19: "then his father and mother will seize him (the rebellious son) and bring him to the elders of his city, to the gate of his locality.
- Deut 22:15: "then the father and mother of the young woman (whom the husband reproaches for not being a virgin) shall take the proof of her virginity and present it to the elders at the gate of the city.
- Deut 22:23-24: "If a virgin girl is betrothed to a man, and another man meets her in the city and lies with her, you shall bring them both to the gate of that city, and stone them to death: the girl, because she was in the city and did not cry out for help; and the man, because he possessed his neighbor's wife. You will remove evil from among you.
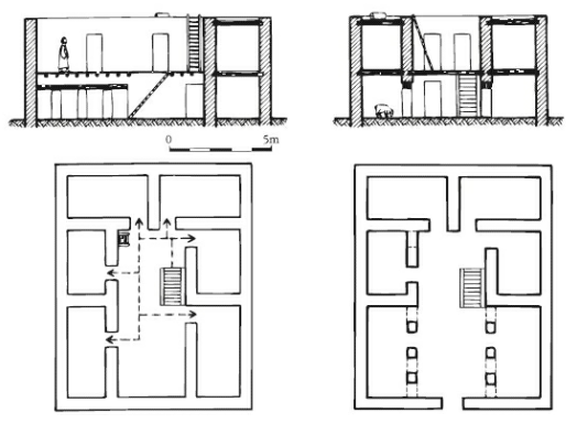
- The House
Fig. 2.4: Plan and cutout of a four-room house. Courtesy Israel Exploration Society
The family, which was the focal point of village life, resided in the house, known in the Bible as the "father's house". There was more than one type or configuration of house. The wide-chambered houses of Izbet Sartah were an early and unusual form of dwelling house in Iron Age I, when many highland villages were established. We still don't know how many rooms in this type of house were covered, so it's difficult to determine where certain activities took place inside the house. Most specialists consider the four-room house and its variants to be the most widespread house of the Iron Age I and II.
- Room division
The term four-room house applies to a building that is not only divided lengthwise by two rows of stone pillars, but also has a long additional room at the rear. According to some specialists, the four-room house was centered on the rear room. This new type of house appeared at the end of the Late Bronze Age and the beginning of the Early Iron Age in the West Bank and Transjordan, as well as in parts of present-day Syria and Lebanon. It soon replaced the traditional courtyard house that was common in the Middle and Late Bronze Ages, although the two types sometimes coexisted. The term four-room house was assigned on the basis of the floor plan, which is based mainly on the remains of wall foundations. It seems that these houses had a second floor with additional rooms on the upper floor. Did the second floor cover the entire building or just part of the first floor? It would seem more logical and efficient to cover the entire first floor wherever possible. A study analyzing the assemblages found in various rooms concludes that at Beer-Sheba, the central ground-floor space was covered and used for storage and seasonal activities such as weaving. This conclusion is followed by the suggestion that the open flat roof was used for activities such as drying goods and sleeping (see fig. 2.4).
- The floors
The discovery of stone steps leading upstairs indicates that the four-room house had a second floor, and that the characteristically strong stone pillars had to support a heavy load such as a second or perhaps even a third floor. Moreover, at some sites, such as Tell Halif in southern Shephelah, clear architectural and stratigraphic evidence, such as millstones and clay vessels on the remains of the second floor, indicate the existence of this element. The combined height of the two floors was probably no more than 4 to 5 meters, with a low first floor.
Biblical references indicate the existence of a second floor. One example relates to Elijah's stay in Zarephath, where a "roof room" is mentioned (1 Kings 17:19: "She held her son in her arms; Elijah took him, carried him upstairs to the room where he was staying, and laid him on his bed"). That roof chambers were living spaces is illustrated by the fact that a well-to-do woman from Shunem offered to build for Elisha "a small roof chamber and put in it a bed, a table, a seat and a lamp" (2 Kings 4:10: "Let us build a small chamber on the upper floor of the house and put in it for him a bed, a table, a seat and a lamp. He will be able to retire there when he comes to our house"). It seems that for Chounem's wife, "small" was a relative term, as her size enabled her to furnish the room quite adequately. As the roof was flat, it was used in winter to collect rainwater, which was diverted by gutters to collection points such as cisterns. The fact that the roof was, as far as possible, a place for living and other activities is also evident from the Deuteronomic Law, which states: "When you build a new house, build a parapet around the terraced roof, so that you will not be held responsible if someone is killed by falling from the roof" (Deut 22:8). The use of the roof for sleeping is illustrated by the fact that, on Samuel's orders, "a bed was spread on the roof for Saul, and he spent the night there" (1 Sam 9:25).
- Room usage
The entrance to the house was in the central space on the first floor, which served as a communication area. The rest of the first floor was used for various domestic activities such as storing goods and preparing meals. Some paved and unpaved areas in the ancillary rooms were probably used to keep animals such as sheep, goats and one or two donkeys. On some sites, cooking facilities were discovered in closed rooms on the first floor, but most were located near doors leading to the outside. Light and air reached the first floor through the main door, through an opening in the ceiling that allowed access to the upper floor via a ladder, and probably also through the gaps deliberately left between the beams (or branches) used to construct the floor of the upper floor. No archaeological information is available on the structure and shape of the windows. Lighting was also provided by oil lamps. The central space of the upper floor was not covered, allowing the floor to serve not only as a communication space between the rooms on this floor, but also as a light and air conduit for the first floor. To achieve this, gaps were left between the floorboards. Although some specialists maintain that the room at the back of the first floor was the main room, or living quarters, others are right to suggest that "the main living quarters must have been on the second floor, around the upper courtyard, which was airy, well-lit and isolated from the ground-floor inhabitants - the chickens, sheep, goats and cattle that were kept there". The uncovered central space on the second floor was a place where domestic activities could take place and where the family group could gather. The upper level thus replaced the open courtyard that characterized the earlier Mediterranean house type.
- The materials
Houses were mainly built of sun-dried mud bricks and placed on stone foundations inside foundation trenches. Ceilings and roofs were made of crossbeams covered with branches or reeds. Walls and roofs were plastered, an operation that had to be repeated from time to time due to erosion caused by rain. It's worth noting that no four-room house in a village showed the slightest sign of sanitation.
- The furniture
Biblical information on the furnishings of the village house is limited. The inventory included "a bed, a table, a seat and a lamp" (2 Kings 4:10). In this respect, archaeology is of no help, as furniture made of perishable materials such as wood cannot be found. Artistic representations are of little help either, as they depict objects belonging to the wealthy. So we have to rely on imagination and ethnological comparisons with societies still living in similar conditions: farming villages, Bedouin tents, troglodyte dwellings and so on. Generally speaking, most of the objects used in the homes of these cultures are made of soft materials and include skins and furs, blankets, pillows and other objects spread out on the floor. For work, stone and mortar benches and shelves are widespread. Niches and benches built inside and around walls are used for storage and seating. Liquids are stored in large containers and cereals in sun-dried earthen and straw containers. These objects must have been used by the Israelites, but they have not survived due to the perishable nature of most of them. A family's wealth and status can be judged by the vessels they use to serve food.
- House extension
If the "father's house" needed to be extended, new four-room houses were built next to the old ones. In dense urban conditions, this type of house became common, especially where buildings were close together and could not be extended horizontally. The two-storey structure enabled the houses to be used more efficiently for storage, animal husbandry and housing large numbers of people.
- Biblical Depictions of Village Life
It's worth remembering that in villages without inns, the locals were expected to invite strangers into their homes. To be invited, strangers would sit in the street or town square and wait for an invitation from one of the locals. This was probably done at the entrance to the village, where people passed by. Note that the houses were large enough to accommodate the guests and their animals, and were protected from intruders by solid doors. These houses were so close together that neighbors could tell when guests were visiting. What's more, the village's population was small enough that the arrival of a stranger would be noticed and quickly broadcast. A fine example is given by Jdg 19, which tells the story of a Levite who travels to Bethlehem to bring home a concubine, and on his way back to the mountains of Ephraim has to stop at Gibeah.
"14 So they passed on and went their way, and the sun went down on them near Gibeah, which belongs to Benjamin. 15 They turned aside there, to go in and spend the night at Gibeah. He went in and sat down in the open square of the city, but no one took them in to spend the night. 16 Then at evening there was an old man coming from his work in the field. The man was from the hill country of Ephraim, and he was residing in Gibeah. (The people of the place were Benjaminites.) 17 When the old man looked up and saw the wayfarer in the open square of the city, he said, 'Where are you going, and where do you come from?' 18 He answered him, 'We are passing from Bethlehem in Judah to the remote parts of the hill country of Ephraim, from which I come. I went to Bethlehem in Judah, and I am going to my home. Nobody has offered to take me in. 19 We have straw and fodder for our donkeys, with bread and wine for me and the woman and the young man along with us. Your servants need nothing more.' 20 The old man said, 'Peace be to you. I will care for all your wants; only do not spend the night in the square.' 21 So he brought him into his house and fed the donkeys; they washed their feet and ate and drank."
- Sociopolitical Structure of the Village
Although village society, at least initially, was economically egalitarian, there was a certain hierarchy in social and political affairs. Primary responsibility for maintaining law and order rested with both parents. Next came the extended family, which belonged to a larger unit, the clan, which in turn formed the basis of village society. As the village is the main socio-economic unit, its system of government is responsible for maintaining peace.
- Village Government
Deut 21:18-19 gives us an example of village governance:
If someone has a stubborn and rebellious son who will not obey his father and mother, who does not heed them when they discipline him, then his father and his mother shall take hold of him and bring him out to the elders of his town at the gate of that place.
So, if things got out of hand and couldn't be resolved within the family, the village elders were charged with maintaining law and order and dispensing justice. The elders represented the village not only in internal matters, but also in inter-village affairs. They gathered for judgment "at the gate of the city", a public place where there was room for such activity. Remember that pre-monarchic biblical traditions attribute to them not only peaceful but also military responsibilities (1 Sam 4:3: "So the people returned to the camp, and the elders of Israel said, 'Why has the Lord made the Philistines beat us today? Let us fetch the ark of the covenant of the Lord from Shiloh: may it come among us and save us from the hand of our enemies!"). Other leaders of the great community in pre-monarchic times were known as "judges" and exercised military and judicial activities. This is the case, for example, of Deborah: "Now Deborah, a prophetess, a woman of Lappidoth, judged Israel at that time. She sat under Deborah's palm tree, between Ramah and Bethel, in the hill country of Ephraim, and the sons of Israel came to her for arbitration" (Jdg 4:4-5); and Samuel: "Samuel judged Israel all the days of his life. Every year he went around Bethel, Gilgal and Mizpah, and judged Israel in all these places" (1 Sam 7:15-16). These chiefs were appointed by the elders and their activities were essentially limited to regional matters.
- The Family
The nuclear family was the cornerstone of Israelite society in general and village society in particular, but as the economy demanded significant human resources, the nuclear family joined with others to form a larger unit, the extended family, which sometimes comprised up to three generations. The extended family included the (grand)father, the (grand)mother, their unmarried daughters, their sons (married or unmarried), and their sons' wives and children. All lived in a four-room house or in a complex made up of several terraced houses. In addition, the complex housed unrelated people who were considered part of the extended family, including slaves, mercenaries and others. The population of a village could consist of one "paternal house" or several. This social unit was known as a clan. A person was identified by his father's lineage, which went back up to five generations. Family responsibility could go back up to ten generations.
Unlike urban life, village life in Iron Age I and II was primarily concerned with ensuring the family's survival. Everything was done to achieve this goal. Every member of the family participated in the effort to survive and propagate. Men, women and children contributed to the general well-being and preservation of the social group. Although biological limits determined the level of involvement, no one escaped participation. Certain roles were gendered, as shown in 1 Sam 8:11-13, where men are described as being engaged in military activities, plowing and harvesting, and making weapons, and women in baking, cooking and making perfumes. It should be noted, however, that women could take part in agricultural tasks such as harvesting and sifting grain {Ruth 2). Until they married, women were involved in animal husbandry, as shown in the patriarchal accounts (Gen 29) and the story of Moses (Ex 2:16-19). Women were also primarily responsible for raising children, while men were expected to enlist in the militia in times of war.
- Hospitality
Hospitality was a fundamental institution of Israelite culture. There is no reason to suppose that it was a uniquely Israelite practice, but other cultures have left no trace of it. It is the biblical writings that reflect the practice of hospitality in various ways and circumstances.
Hospitality was considered a very ancient custom. The patriarchal narratives contain several examples of welcoming guests or strangers in a resplendent manner. Abraham, the eponymous father of the nation, is credited with welcoming divine messengers in a sumptuous manner. He invited them to sit under a shady tree next to his tent, offered them water to wash the dust from their feet, had a special meal prepared for them (bread, veal, butter and milk) and personally made sure they ate and enjoyed their meal (Gen 18:2-8). That this was a family custom is confirmed by the story of the destruction of Sodom, in which the same treatment was offered by Abraham's nephew Lot, who invited the divine messengers to his home, where water was offered to wash their feet and a great feast was prepared in their honor. The tradition was broken by the behavior of the Sodomites, against whom Lot had to defend his guests (Gen 19:1-11). The need to protect guests is underlined in the story of Gibeah's concubine (Judges 19), which is linked to the period of settlement. Here, as in the case of Lot, the Ephraimite host was prepared to put his family's life at risk to protect his guests. The rape of the concubine by the inhabitants of Gibeah, who were Benjaminites, infuriated the rest of the Israelites and prompted them to fight the Benjaminites. Moreover, the Israelites were so incensed by this violation of tradition that they vowed not to marry anyone from the tribe of Benjamin (Judges 21).
The fact that hospitality in rural Israel was an expected custom again plays an important role in the story of Gideon's call to take leadership of his clan (Jdg 6:11-21). Like Abraham, "Gideon went into the house, prepared a kid and unleavened bread with an ephah of flour [for the angel of the Lord]; he put the meat in a basket and the broth in a pot; he brought them to him under the oak and served them" (Jdg 6:19). The rewards and punishments for fulfilling this custom are expressed in numerous stories.
The biblical story of Rahab and the Israelite spies shows that the custom of hospitality was not only practiced by the Israelites, but was part of the fabric of life in ancient Cannaan. When the Israelite spies sent by Joshua arrived in Jericho, Rahab welcomed them and protected them from the inhabitants who wanted to capture them (Josh 2:1-8). Another example of hospitality from a non-Israelite is described in 1 Kings 17:8-16, where the prophet Elijah enjoys the hospitality of a woman from Zarephath.
Hospitality persisted and was a strong institution in rural Israel, even in the days of the monarchy. The way the woman of Shunem treated Elisha is a good example (2 Kings 4:8-11). Whenever he passed through the town, the woman invited Elisha to eat. After a while, when this became a habit, she reserved part of the house for him. The spirit of hospitality that prevailed in the days of the monarchy is reflected in many stories from this period, one of which is the permanent lodging of Mefibosheth, son of Jonathan, in David's house (2 Sam 9). Another is Hezekiah's invitation to the people of the northern kingdom to celebrate Passover in Jerusalem (2 Chr 30). Whether real or imagined, these stories could be told, for Israelite culture had a strong tradition of hospitality.
- Religious Practices
Fig. 2.5: Kuntillet Ajrud inscriptions on a jar
Until the reforms of Hezekiah, in the last quarter of the eighth century BCE, and Josiah, in the last quarter of the seventh century BCE, religious practices were family-centered and took place in family shrines and in local and regional sanctuaries. Sanctuaries were scattered all over the country, from Dan to Beer-Sheba, and Israelites worshipped a variety of deities, including Baal, Achera, YHWH and others. Sanctuaries were located on hilltops, as recounted in the story of Saul's first anointing (1 Sam 10:5-13), and inside homes. Biblical references describe some of these local and regional sanctuaries (1 Sam 1), and archaeological evidence provides some illustrations. A village sanctuary overseen by a family is described in the story of Gideon (Jdg 6:24-32), listing the various elements that were incorporated into the sanctuary, such as a stone altar. The existence of domestic sanctuaries is illustrated by the story of Micah (Jdg 17-18), who built his own sanctuary and employed a Levite to maintain it. The existence of domestic sanctuaries until at least the end of the eighth century BC is demonstrated by the discovery of a sanctuary of this type inside a domestic structure at Tell Halif. The shrine was identified by its cult paraphernalia and the head of a figurine found on the floor.
Fig. 2.6: Khirbet el-Qom's inscriptions
Tranlation:
Uriyahu the honourable has written this
Blessed is/be Uriyahu by Yahweh
And [because?] from his oppressors by his asherah he has saved him
[written] by Oniyahu"
"...by his Asherah
...and his Asherah
That the Israelites worshipped deities other than YHWH is evident not only from biblical references, but also from archaeological and paleographic evidence. The temple at Arad with its two standing stones in the holy of holies and the inscriptions at Kuntillet Ajrud (fig. 2.5; this site is located in the southern Negev, see map) and Khirbet el-Qom (fig. 2.6), which mention YHWH and his Astarte, strongly suggest that YHWH had a consort named Acherah. The numerous clay figurines depicting a woman supporting her large breasts with her hands, which have been found in many settlements identified as Israelite, confirm this notion (see fig. 2.7).
Fig. 2.7: An array of pillar figurines. Courtesy The Israel Museum, Jerusalem
Cult celebrations were seasonal and determined by the appropriate occasion, such as the beginning or end of the crop harvest, the end of fruit picking, sheep shearing, the celebration of the new moon. This is well illustrated by David's excuse for abstaining from King Saul's feast while celebrating it with his family (1 Sam 20) and by the shearing celebrations initiated by Nabal of Mount Carmel (1 Sam 25) and by David's son Absalom (2 Sam 13, 23-28).
- The Economy
Unlike urban life, village life in Iron Age I and II was primarily concerned with ensuring the survival of the family. The means of production belonged to the family and remained with it, whether the economy was pastoral or agrarian.
The village economy was based on seasonal work centered on tilling the land and raising livestock; however, men and women were engaged in many other tasks during the off-season, including the production of goods and the repair of tools and installations. The working day extended from sunrise to sunset, but often began and ended earlier or later than this, as the use of daylight had to be optimized (Prov 31:15: "She rises while it is still dark to prepare food for her household and give orders to her maids").
Daylight optimization took place during the fieldwork seasons, when workers left home at dawn for the field or orchard, and stayed until sunset. This maximum use of daylight meant that workers had to travel to and from their place of work in the dark, and at the same time dictated the distance to the fields or orchards. Beyond a certain distance, workers preferred to stay in the field overnight rather than spend long hours traveling.
- Agriculture
- Land ownership
Once the Israelites had established their presence on the land, agriculture became their main source of income. Ideologically, the land belonged to YHWH, and the transfer of the family plot could only legally take place by inheritance. Due to certain economic conditions, a landowner who was not doing well could be forced to cede his land to another owner, but not for more than fifty years. At the end of this period, the land reverted to the original owner (Lev 25:8-55). However, while this law was in force, there is no indication of the extent to which it was or was not respected. The story of Chounem's wife, who was asked by Elisha to emigrate to the land of the Philistines during a drought, shows that the right to the family plot was maintained even under difficult conditions. On her return, after seven years, her right to the land was recognized and she recovered her field and the value of her field's yield for the duration of her stay (2 Kgs 8:1-6). There is an indication that this law was practiced until the Babylonian invasion in the sixth century BC, with the story of the prophet Jeremiah's symbolic act of redeeming the land belonging to his kinsman (Jer 32: 6-44). Jeremiah, a Benjaminite from the village of Anatoth, followed the accepted procedure to redeem land located in Anatoth and belonging to his cousin Hanameel. His act kept the land in the family.
Over time, as agricultural production methods improved, a surplus of agricultural products and by-products was created. This enabled the development of the monarchical system, which relied heavily on taxes levied on these surpluses.
- Land Use
Topographically and geologically, the land of Israel consists mainly of hills and rocks. In addition, large parts of the country are arid or semi-arid. All these difficult conditions have forced the Israelites to develop special ways of overcoming environmental constraints. Part of the adaptation to these inhospitable conditions involved adopting and popularizing methods that had never been used on a large scale. These included clearing forests, building terraces and practicing runoff farming. By clearing the forest, new tracts of land became available in the hilly region. In addition to the construction of terraces on hill slopes to create level plots of land, this opened up the central part of the country to settlement in areas that had previously been either unsettled or barely occupied.
Another way of gaining new farmland was to practice runoff agriculture. This method used canals and check dams to collect rainwater on the slopes of hilly terrain and divert it to terraced fields and cisterns. This method was mainly used in areas with limited rainfall, to facilitate the colonization of inhospitable regions such as the Negev. Most settlements in the Negev were located along trade routes, suggesting that they were encouraged by the central government to protect roads and borders.
- The Calendar
Fig. 2.8: The Gezer calendar
The Israelite calendar was determined by seasonal work and included feasts to celebrate these events. However, the calendar presented in the Bible is actually the result of a combination of several calendars, a process that took place over a long period of time. The biblical calendar includes remnants of the Canaanite, Israelite and Babylonian calendars, which were introduced at different times and under different circumstances. However, daily life was determined by the seasons and the tasks that had to be accomplished at the time. For the work of the land, we have a document, the Gezer calendar, which helps us to reconstruct the agricultural year. Discovered on the site of the ancient town of Gezer in the early 20th century, this limestone palette contains seven lines describing eight agricultural tasks.
1 two months of ingathering (olives)/ two months
2 of sowing (cereals)/ two months of late sowing (legumes and vegetables)
3 a month of hoeing weeds (for hay)
4 a month of harvesting barley
5 a month of harvesting (wheat) and measuring (grain)
6 two months of grape harvesting
7 a month of ingathering summer fruit
Since four of the chores are listed as lasting two months each, and the other four are listed as lasting one month each, they total twelve months and cover the entire year. The chores are sowing (cereals), late sowing (legumes and vegetables), weeding, harvesting cereals and grapes, and picking other summer fruits, including olives. The periods allocated to each chore also included sufficient time for processing and by-product production. The Israelite feasts were determined by the start or completion of these tasks.
Cereal sowing, which took place from late October to late December, marked the beginning of the agricultural year. (sowing was followed by ploughing). This was followed by late sowing of legumes (late December to late February) and weeding (March). The barley harvest (from the vernal equinox to the end of April), the beginning of which was celebrated by the Passover feast, marked the start of the harvest. This was followed by the wheat harvest (late April to late May), which ended with the celebration of the Feast of Weeks (Pentecost). Grapes were harvested in June and July, other summer fruits from the end of July to the end of August, and the picking season ended with two months of olive harvesting (from the end of August to the end of October), culminating in the great feast of the "harvest" (tabernacles or tents).
The Israelites' agricultural calendar can be summarized as follows:

There is nothing similar to Gezer's calendar for herding tasks, but as the nature of herding animals has not changed since biblical times, it is possible to reconstruct the calendar of the herding population.
- Cereals and spices
Cereals were the main crops grown by the Israelites. They included wheat, barley and millet, all of which were used to make bread and other products, as well as to cook porridge, gruel and other such dishes. Barley was also used to make beer. The second most common group of field crops was legumes, including peas, chickpeas, chickling vetch, broad beans and fenogreek. The Israelite farmer also grew flax, sesame and several kinds of spices, including dill, cumin, black cumin, coriander and others.
- Threshing and winnowing
Crop harvesting involved several other tasks, such as threshing and winnowing, the end result of which was to separate the grain from the stalks and chaff. There were several threshing methods; the choice depended on the crop to be threshed. Threshing could be carried out by sledge, cart or stick. Winnowing was done with a wooden fork and a hoe, using the wind to separate the chaff and straw from the grain. Final cleaning was carried out using various types of sieve. The clean grain was then stored either in jars, storage pits or other storage facilities. During the monarchy, grain was also used to pay taxes.
- Fruit trees
The main fruit trees cultivated by the Israelite farmer were the vine and the olive. These were cultivated in vineyards and olive groves respectively, while other fruit trees such as figs, pomegranates, dates, sycamores, carob and black mulberry, as well as pistachios, almonds and walnuts, were grown in smaller numbers in mixed groves not far from the house. The main product of the vineyards was wine; olives were grown for oil. Both products were produced in special facilities (the wine press and the olive press respectively) during the harvest season. The finished products were stored in jars for local use, barter and tax payment. This last point is well attested by the Samaria ostraca, which record the quantities of oil and wine received at the Samaria collection center. Biblical and extra-biblical references indicate that different types and qualities of wine and oil were available.
- Fruit processing
In addition to eating fresh fruit in season, the Israelites used fruit to produce raisin-like dried fruits and jams. Scholars suggest that the term "honey", mentioned repeatedly in the Bible (e.g., Exodus 3:8), often refers to this product, particularly that made from dates. Due to their high sugar content, fruits such as dates and pomegranates were also used to produce alcoholic beverages. Fruit processing was necessary because of its short shelf life. Fruit processing guaranteed the farmer that the entire harvest could be used without deterioration before the new crop was ready for picking.
- Vegetables
Vegetables have a short vegetation period and had to be eaten fresh, as they could not be processed and preserved for food. Biblical references to vegetables are few; the best known is Num 11:5, which mentions the types of vegetables grown in Egypt. The difference between Egyptian horticulture and the conditions in Canaan is highlighted in Deut 12:10, which states that Canaan "is not like the land of Egypt... where you sowed your seed and watered it with your feet, like a vegetable garden". Egyptian vegetables that were also grown by the Israelite farmer included cucumbers, watermelons and melons, leeks, onions and garlic. Farmers also grew squash, especially gourds (calabash). They also grew mint and marjoram in their gardens.
- Herding
Animal husbandry was the second most important occupation of the Israelites. At certain times and in certain regions, animal husbandry was the main activity. Although animal husbandry is generally perceived as nomadic, Israelite animal husbandry was both transhumant (seminomadic) and sedentary. This means that shepherds led their animals on seasonal grazing expeditions along a prescribed circuit in a given territory while maintaining a home base, or were part of a village community that was involved in livestock farming to a limited extent, mainly for its own consumption.
The animals in the herd included goats and sheep, most likely black goats and fat-tailed Awassi sheep. Goats are hardier than sheep and are more numerous in arid and semi-arid zones. Both were bred for their ability to provide milk and meat. In addition, goats provided hair, used for weaving tent canvas and bags; sheep provided wool, used for weaving clothes. Their skins could also be used for many purposes, such as making containers for liquids (water, wine, milk), belts, shoes, etc. During and after the lambing season (December/January/June/August), ewes and goats produce milk that can be processed into a variety of products. Although milk can be consumed fresh, it does not keep long without refrigeration and must be processed for long-term use. The most common dairy products are yoghurt, butter and several types of cheese, the most common of which is dry cheese. Although not a herd animal, the cow was also bred for its milk and skin, but above all for its muscles. All animals were raised to produce manure, which enriched the soil and served as fuel.
The Israelite menagerie also included donkeys, bulls, camels, mules and horses. They were used as draught animals. Donkeys were the most commonly used animals for transporting people and goods; camels, introduced relatively late, were used for transport in arid regions. Bulls (or oxen) were used as draught animals for ploughs and carts. Mules were used to transport goods, but were also considered prestigious animals. The horse was also considered a prestigious animal and was used mainly for military purposes.
While pigeons were probably bred under controlled conditions, chickens only appeared from Southeast Asia towards the end of the monarchic period (6th century BC). When available, poultry provided the Israelites with another source of meat and eggs.
- Other Professions and Occupations
Many of those engaged in farming and livestock breeding had the knowledge and talent to engage in other occupations, which produced goods for self-consumption or barter. In the villages, most of these people engaged in these activities in their spare time between seasons. In monarchic times, especially in towns when not everyone lived off the land, these occupations became professions, and their practitioners were members of guilds and kept the know-how within organizations and the family circle.
- Pottery Making
Pottery is the art of making objects from clay, which is then fired and hardened with heat. Since its invention in the late Neolithic period (6000 BC), pottery has been taught from generation to generation. As with other crafts, there were many secrets - secrets that could not be divulged. Some of these concerned clay sources, the correct mixing of ingredients, the correct shaping of vessels, firing techniques and so on. The standardization of vessels suggests that pottery-making was in professional hands long before the Israelites appeared. Apart from non-utilitarian objects such as figurines, most vessels were intended for everyday use.
Several biblical references to the potter, his work and his products testify to the Israelites' familiarity with pottery production. The image of YHWH as a potter (Gen 3:7,19; Is 29:16; 64:8) reinforces this notion and illustrates the Israelites' high regard for potters. Moreover, several prophets describe the process: Jeremiah relates that he visited a potter's workshop, where he saw the craftsman using a potter's wheel (Jer 18:3). The second Isaiah, when evoking Cyrus and his victories (Isa 41: 25), compares him in his speeches to the potter working the clay, and 1 Chronicles mentions the potters' guild (1 Chr 4: 23).
Potters specialized in the manufacture of certain vessels and mass-produced them. They sold, bartered or exchanged them on local or more distant markets. Palestinian potters mainly produced utilitarian vessels such as cooking pots, storage jars, bowls and other kitchen vessels.
Pottery was an important part of everyday life. Some broken vessels were repaired by passing a string through holes drilled on either side of the break. Pottery shards could be reused for mundane purposes, such as carrying coals or water (Isa 30:14), scratching an itch (Job 28), or writing letters and receipts, as in the case of the Lachish letters and Samaria ostraca. Broken pieces of pottery were also used by the prophets as symbolic elements (Is 45:9; Jer 19:10-11; Lam 4:2).
- Weaving
The term "weaving" refers to the production of a fabric by interlacing two series of threads so that they cross at right angles. A preliminary activity is spinning, which involves extracting fibers from a mass and twisting them together to form a continuous thread. The large number of loom weights, spindles and other weaving tools in domestic contexts indicates that weaving was an important activity among the Israelites. Ethnographic studies show that two types of loom were used in the Near East: the horizontal loom and the vertical loom with a warp weight. Little is known about the use of the former, but the large number of Iron Age sun-dried clay loom weights found in excavations suggests that the warp-weight loom was more common. This type of loom consisted of a crossbeam supported by two vertical beams with the longitudinal threads attached to the crossbeam at one end and held taut by loom weights attached to the other end.
The most common materials for making cloth were wool and linen (Lev 13:47-48). Goat's hair was also used to make tent covers, coarse coats and bags. The large number of spindles discovered during the excavations indicates that the yarn was produced on the very site where the weaving took place. These objects were made from a variety of materials, such as rounded pottery shards with a hole in the middle for the spindle, clay (like weights) or bone. Although linen was grown in Palestine, sheep's wool was the preferred weaving material (Ez 34:3). Wool was used to pay tribute, as indicated in 2 Kings 3:4 and Assyrian documents. Archaeological discoveries show that during the period of Assyrian domination, some villages and towns specialized in weaving.
Traditionally, weaving was women's work (Prov 31: 13,19), although men were sometimes involved in this activity (Isa 19: 9). The different sizes of loom weights strongly suggest that different types of fabric were woven. Bone spatulas discovered during archaeological excavations suggest that Israelite weavers knew how to weave patterns. This is corroborated by several references to weaving with gold and silver threads (Ex 39:3) and references to dyed fabrics (Jdg 5:30).
Dyeing is the process of adding pigments by hot or cold treatment. For textiles, the most effective method is to dye the yarn rather than the fabric. The pigments used for dyeing come from animals, plants and minerals. Most of these sources were available to anyone interested in dyeing, with the exception of purple dyeing. Purple dyeing was a costly and secretive process using certain mollusks (Murex), which became the monopoly of the Phoenicians. The high price of purple-dyed textiles contributed to their becoming a symbol of high status, particularly for royalty.
- Tanning
The term "tanning", called "reddening" in Hebrew and Greek, refers to the process of transforming hides into soft, flexible leather. Egyptian texts and paintings describe this operation: hides were stripped of hair and other matter and placed in a special solution of plant juice, lime, bark or leaves. The smell and treatment of impure material meant that professional tanners were held in low esteem. However, this process was important to enable the use of skins from slaughtered animals. One of the reasons for raising animals was to harvest their skins for the manufacture of clothing, footwear, belts and containers for liquids. Ethnographic observations show that tanning was largely practiced as a cottage industry, and it is likely that many Israelites engaged in the process for their own needs. The tanning process must begin as close as possible to the animal's slaughter, otherwise the hide begins to decompose.
In the description of the construction of the tabernacle, tanned skins are mentioned among the offerings (Ex 25:5; 26:14; 35:7, 23). They were used to build the coverings and partitions. Having hides as offerings strongly suggests that the Israelites knew and practiced tanning.
- Carpentry
From the information available in the Hebrew Bible, it seems that the early Israelites did not know complex woodworking, since Solomon had to import carpenters from Tyre for the construction of the temple (1 Kings 5:20). Complex woodworking, such as making furniture and inlaying it with ivory carvings, remained in the skilled hands of Phoenician craftsmen. However, the Israelites did work with wood when they needed it for the construction of their homes. It seems that they knew how to fell trees and shape them into load-bearing beams for the construction of their houses. They must have used the same techniques to shape wood for facilities such as looms, and to build simple objects such as ladders, ploughs and other agricultural implements. Isaiah's detailed description of the carpenter and his tools (Isa 44:13) suggests that in monarchic times, the Israelites became familiar with and involved in carpentry. This is evidenced by the fact that carpenters were among those exiled to Babylon (Jer 24:1; 29:2).
- Masonry
Due to the geology of Palestine, masonry for the Israelites meant building structures with sun-dried stones and mud bricks. As with carpentry, the early Israelites were unfamiliar with certain stone-working techniques, such as stone dressing. They built their houses using dressed stones for the foundations and lower courses, with most of the superstructure made of mud bricks. Dimension stones were also used in the construction of the terraces that enabled the Israelites to settle in the hill country. In the early monarchical period, David (2 Sam 5:11; 1 Chr 14:1) and Solomon (1 Kings 5:32) imported skilled masons from Phoenicia, well-versed in the art of stone-cutting. Archaeological evidence suggests, judging by style and technique, that Phoenician involvement in Israelite building projects continued into monarchical times. However, biblical evidence suggests that when the Jerusalem temple was repaired, it was Israelite craftsmen who did so (2 Kings 12:12; 22:6; 2 Chr 24:12).
The existence of Israelite cemeteries containing burial caves and cisterns carved into the rock strongly suggests that the art of carving spaces into the rock was well established in Israelite society from the earliest times.
- Metallurgy
Biblical tradition maintains that Israel had no metallurgical know-how or was forced not to practice it in its early days.
There were no blacksmiths to be found anywhere in the land of Israel, for the Philistines had said to themselves: "The Hebrews must not make swords or spears for themselves." So all the Israelites went down to the Philistines to sharpen their plowshares, hoes, axes and chisels. Sharpening cost two-thirds of a shekel for plowshares, hoes, forks, axes and the reconditioning of goads. So, on the day of battle, Saul and Jonathan's troop found themselves without swords and spears. Nevertheless, some were found for Saul and for his son Jonathan (1 Sam 13:19-22).
Scholars are still debating whether this passage indicates that the Philistines had a monopoly on the production of iron tools, forbidding their manufacture to the Israelites, or whether it was they who introduced iron forging to Canaan. Archaeological evidence, including crucibles, furnaces and slag, suggests that from the earliest days of the Israelite period, the Israelites were familiar with metallurgy and were busy producing bronze tools, even in isolated villages. However, working with iron is different and more difficult than working with bronze, and it is possible that the Philistines prevented Israelite metalworkers from learning the new technology until King David subdued them.
As with other professions, biblical tradition has attributed an eponymous ancestor to metallurgy: "Zillah bore Tubal-cain, who made all kinds of bronze and iron tools. The sister of Tubal-cain was Naamah." (Gen 4: 22). The Qenites' linguistic association with Cain has suggested that they were metallurgists; their long-standing association with the Israelites (e.g., Jdg 4:11; 5:24) further suggests that they were responsible for introducing the Israelites to metallurgy. As the Qenites were a wandering people, they may have served as itinerant blacksmiths, visiting towns and villages and earning their living in part by forging. The Israelites may have learned metallurgy from sources other than the Qenites. Egyptian written and artistic documentation indicates that metallurgy was a well-known activity in Egypt, which could have been another source of Israelite involvement in this activity. The Hebrew Bible is replete with evidence of Israelite involvement in various types of metallurgy.
Several sources show that the Israelites made metal idols. While the story of the golden calf may be considered a myth, references to the making of metal idols (Deut 27:15; Isa 44:12; Hos 13:2) show that there is some reality behind the story. Although its makers are unknown, the early Iron Age bronze bull from the site of the Bull in the hills of Samaria is a good example of such an idol, and there are several other examples of metal figurines from Israelite contexts.
Forging is described in several places in the Bible, where numerous terms related to forging, molding, beating, covering, supplying, sharpening, cutting and welding are mentioned (Isa 1:25; 48:10; 54:16; Jer 6:29; Mal 3:2-3; Ps 12:7). Biblical references also mention different types of smiths: silver and gold (Isa 40:19; 41:7; 46:6), iron (Isa 44:12) and bronze (1 Kings 7:14). Metallurgy is linked to the construction of the tabernacle and temple (Ex 36: 14.19; 39: 34; 1 Kings 7). The fact that metallurgy became an important profession in monarchic Israel is suggested by the mention of blacksmiths among the people exiled to Babylon (2 Kings 24:14; Jer 24:1; 29:2).
- Warfare: The Early Years
In general, war was such a common event that, for the Bible, specific references to periods of peace became necessary. Whatever actually happened in Canaan during the pre-monarchic period of colonization, the Israelite mind viewed that time as one of turbulence, and specific statements such as "So the land was at peace for forty years" (Jdg 3:11) were necessary to reflect certain peaceful events that occurred during the time of the judges. The same situation prevailed when David was absorbed in establishing the first Israelite territorial state. This is well reflected in the statement attributed to Solomon: "But now, on all sides, YHWH my God has given me peace; there is no one to oppose me, I fear no attack" (1 Kings 5:18). However, the period of the monarchy was also marked by many wars, so much so that when there was a "window" of peace, it received special mention: "and in his [Asa's] time, the land knew peace for ten years" (2 Chr 13:23; see also 14:4-6).
So what do we know about warfare in early Israel? Despite its dubious reliability, the Bible is our main source of information on these questions for the period under consideration. There are extra-biblical sources, mainly Egyptian, for the period before the arrival of the Israelites and their rivals, the Philistines, in the land of Canaan. These include reports on the military campaigns of several pharaohs in Canaan and letters from Amarna. The latter describe the political situation in Canaan at the end of the Bronze Age (13th century BC), when Egypt controlled the region. There are no good extra-biblical references to the conflicts that took place during the settlement period, with the exception of the Merenptah Stele (dated around 1210 BC), which describes an encounter between the Egyptian pharaoh and an entity called Israel.
Israelite traditions record that pre-monarchic wars were fought on land, in open country (in the Shephelah, Josh 10:8-14; in the north, Josh 11:1-9) and against fortified cities (Josh 10:31-39; 11:12-14; Jdg 9:34-55). The nature of the military encounters was dictated by the composition of the Israelite fighting forces, which consisted of a militia. In other words, every adult male was expected to take part in combat when summoned. The militia was recruited by family and clan, and certain individuals were appointed to lead units. For a time, David commanded one of these units (1 Sam 18:13; 22:7). The leaders were known as "judges". Each individual was responsible for supplying weapons and food (1 Sam 13:19-22; 17:17-18). Biblical accounts from the early period depict the Israelites using weapons such as goad prods (Jdg 3: 31), jawbones (Jdg 14: 15), slings and stones (Jdg 20: 16 ; 1 Sam 17), bows and arrows (1 Sam 20: 19), two-edged swords (Jdg 3: 16), scabbards (1 Sam 17: 51), spears or javelins (1 Sam 17: 45), and helmets (1 Sam 17: 38). During the period of colonization, the average Israelite did not possess iron weapons (1 Sam 13: 19-22).
Although the biblical writers endeavored to present an image of unity among "all Israel", the accounts relating to the period of settlement describe a situation in which certain groups of Israelites chose to participate in or refrain from a conflict according to their own interests, which were often linked to their proximity to the skirmish. The battle fought by Barak and Deborah, commemorated in Jdg 5, is a case in point: the participating tribes are praised, while those who chose not to join them are denigrated. Moreover, the ideal unity of the Israelites is shattered by numerous accounts of inter-tribal conflicts and wars.
- Ideology
Ideologically, Israel's wars were the wars of YHWH, who was considered a warrior (Ex 15:3). This notion was not limited to the pre-monarchical period (Isa 42:13; Ps 24:8). Israel's enemies were considered YHWH's enemies (Jdg 5:31; 1 Sam 30:26), which is why YHWH assisted Israel in its wars (Ex 14:13-14). He intervened on Israel's behalf by manipulating natural phenomena (Josh 10:11-13; 24:12; Jdg 5:4-5, 20-21). To ensure Israel's victory, YHWH had to be present on the battlefield, which was made possible by the presence of the holy ark (1 Sam 4). Moreover, YHWH used Israel's enemies to punish the latter for its iniquities through a war that led to destruction, servitude and captivity (Jdg 4:1-2; Isa 5:26-28). This is how Israelite ideology explains the turn of events during the period of the Judges, marked by numerous conflicts between tribes and other ethnic groups. This belief was not limited to Israelites, as shown by the Moabite stone erected by Mesha, king of Moab (circa 830 BC). In this inscription, Mesha attributes Moab's misfortunes to the fact that "Kemosh [Moab's chief god] was angry with his country". Moreover, YHWH did not limit his action to Israel, and also disciplined other nations through war (Isa 13; Jer 46:1-10).
The possibility of losing one's life in a military confrontation led to the formulation of specific laws exempting certain people from military service. The book of Deuteronomy, which is considered a late compilation of laws, includes many laws that must have been formulated at an earlier period. It seems that the laws of military exemption belong to the earliest period of Israelite history.
They stipulate the following :
And the scribes will speak thus to the people: "Is there a man here who has built a new house and has not yet inaugurated it? Let him go and return to his home, lest he die in battle and another inaugurate the house. Is there a man who has planted a vineyard and not yet gathered its first fruits? Let him go and return to his home, lest he die in battle and another man gather its first fruits. Is there a man who has chosen a bride and not yet married her? Let him go and return to his home, lest he die in battle and another man marry the bride". (Deut 20:5-7)
Moreover, "Is there a man who is afraid and whose courage fails? let him go and return to his home, lest he melt the courage of his brothers as his own" (Deut 20:8). This exemption was respected by Gideon before his battle with the Midianites (Jdg 7: 3).
- Strategy and Tactics
- The treaties
Because of the damage and suffering it causes, war was to be avoided wherever possible. To facilitate the peaceful conclusion of a conflict, a treaty could be signed, like the one between Joshua and the Gibeonites (Josh 9:3-27). One of the conditions of the treaty was military aid in the event of an attack against a party to the treaty. In the case of this treaty, this condition was put to the test when the local Canaanite city-states attacked the Gibeonites and Joshua had to come to their rescue (Josh 10).
- Combat preparation
- The intelligence service
Every act of war requires preparation. The most rudimentary step is to gather information on the enemy's situation, known in modern parlance as intelligence work. This can be done through espionage. The Bible contains numerous episodes of espionage. According to Israelite tradition, Moses sent spies to explore Canaan (Num 13), and the information they brought back discouraged the Israelites. Another spy mission undertaken under Moses' direction was against Jazer in Transjordan. This one ended more successfully: "they [the Israelites] seized its outbuildings, and Moses drove out the Amorites who were there." (Num 21:32). The most famous spy mission is linked to the capture of Jericho (Josh 2). In this case, Joshua sent two men to infiltrate the city and gauge the mood of the local population. The end of this story is well known: Jericho fell and Rahab, the woman who helped the spies, and her family were saved.
Joshua continues to employ spies during preparations for the attack on Ai (Josh 7, 2-3). Bethel is taken by the House of Joseph after an inhabitant indicates the entrance to the city to the Israelite spies (Jdg 1, 22-24). Gideon, one of the chief judges, personally went on a spying mission, which enabled him to learn the state of mind of his Midianite opponents (Jdg 7:9-14). He discovered that, despite the large number of Midianites and their allies, they were afraid of him, which he used to his advantage. David also sent spies to discover Saul's whereabouts (1 Sam 26:5).
- Summons
The gathering of forces was done by summoning them with messages. The most common way of transmitting the summons was by means of a horn (ram's horn; Jdg 3:27; 6:34; 1 Sam 13:3). The signal was to be transmitted from one place to another, informing the Israelites of the imminence of battle. Not all information could be transmitted by sounding the horn, so messengers were sent to disperse the information. The messengers carried the summons and a verbal explanation. Whether or not this is true, the Bible mentions that the call to duty was sometimes accompanied by messengers passing on human body parts (Jdg 19:29) or animal parts (1 Sam 11:7) to the various Israelite communities. These symbolic acts were intended to encourage the different tribes to unite.
- Training
Individuals or groups had to train and practice military techniques. When David was about to learn from Jonathan whether Saul was pursuing him, Jonathan used his bow and arrow to communicate with David (1 Sam 20:18-42). It must have been common practice to test soldiers' skills. Gideon tested his soldiers by having them lap up water from the brook (Jdg 7:5). Although the reason for this practice is not entirely clear, it must have been part of a routine, since they didn't object.
- Consultation on the outcome
An important part of the routine was to consult YHWH about the outcome of the battle. This practice already existed in early times (Jdg 20:27; 1 Sam 13:8-10; 28:6; 30:7-8) and was also used by the kings of Judah and Israel (1 Kgs 22:5-28). This custom was not exclusively Israelite and was practiced throughout the ancient Near East. A good example is provided by letters from the archives of King Zimri-Lim (18th century BC) of Mari (Mesopotamia). In a letter addressed to the king, his wife draws his attention to a message received from the goddess Annunitum by an individual named Shelebum during a trance:
O Zimri-Lim, you will be tested by rebellion. Set up, keep by your side to protect you the servants and officials you favor. Do not move alone. All those who will test you, I will hand them over to you.
Extispice (examination of animal organs, particularly the liver) and augury (interpretation of bird flight) were other means of predicting the outcome of future events. They were practiced by the Hittites and Babylonians. To consult YHWH, the Israelites employed the services of priests and prophets, who used the ephod, the Urim and Tummim, dreams and necromancy. Sometimes, however, the Israelites neglected to consult YHWH, as in the case of the Gibeonites, who successfully tricked the Israelites into making a covenant with them (Josh 9:14-15).
- Tactics in combat
- Guerrilla warfare
Being few in number and poorly armed, the Israelite militia had to resort to tactics that enabled them to gain the upper hand. The Israelites could not withstand a frontal confrontation with other armies in open country and resorted to what is known as guerrilla warfare, which they adapted to the resources and conditions available to them. A famous attempt by the Israelites to wage a field battle against their opponents ended in total disaster. The Israelites met the Philistines near Eben Ha'ezer, not far from Aphek, near the Yarkon River, on the border between the coastal plain and the northern Shephelah. After their first defeat, the Israelites brought the Holy Ark back to the battlefield. But this ended in another disaster, and the ark was taken into captivity (1 Sam 4).
- Psychological warfare
Being considered losers from the start, the Israelites resorted to psychological warfare, alluded to in several accounts. For example, when the spies return from their reconnaissance of Jericho, they inform Joshua of the state of mind of the local inhabitants, saying that "all the inhabitants of the land melt with fear before us" (Josh 2:24). Gideon's spying mission in the camp of the Midianites and their allies (Jdg 7:15) was prompted by the search for the state of mind of his adversaries. In both cases, Joshua and Gideon used the knowledge gained from espionage to their advantage: when attacking their enemies, the Israelites performed deeds that baffled and frightened them. Joshua's march around the city with the final noise (Josh 6:16) and Gideon's use of noise to surprise and stun his enemies were the result of their knowledge that their enemies' psychological state was fragile
- Trickery
Unable to sustain a frontal confrontation, the Israelites resorted to trickery. They did so at the Battle of Ai, feigning defeat. In so doing, they induced the unsuspecting inhabitants of Ai to leave their city undefended while pursuing the Israelites. This allowed another force to enter the city and destroy it (Josh 8). The conquest of Bethel by the house of Joseph (Jdg 1:22-26) was also made possible not by a direct attack, but by their ability to lure one of the local inhabitants to show them a secret passage.
- Exploiting the environment
Exploiting the environment to their military advantage was another hallmark of Israelite strategy. The war between the Canaanites of Sisera and the Israelites tilted in favor of the Israelites because, as described in Jdg 5, following a torrential downpour, the Canaanite war chariots got stuck in the mud.
- Multi-frontal attacks and ambushes
Israelite military strategy included the use of attacks on several fronts, two fronts as at the battle of Ai (Josh 8), three or four fronts, as Abimelech did (Jdg 9:34, 43-44). Another tactic was to set up ambushes, as at the battle of Ai (Josh 8) and skirmishes between the Benjaminites and the rest of the Israelites at Gibeah (Jdg 20, 29-41).
- The use of commandos
Israelite tactics included commando raids, such as those carried out by Jonathan against the Philistines (1 Sam 14:1-16) and by David against Saul (1 Sam 26:5-12). Night attacks were another way of avoiding direct confrontation. Gideon led a night attack against the Midianites (Jdg 7:16-22), and one of Saul's raids against the Philistines took place at night (1 Sam 14:36). Raids, not necessarily by night, are also led by David (1 Sam 27:7-12; 30:1-3).
- The duel
According to the custom of the time, some conflicts are settled by a duel, as in the encounter between David and Goliath (1 Sam 17). The outcome of other conflicts is decided by the involvement of small groups, as was the case between Abner and Joab (2 Sam 2:14-15).
- Sieges
In some cases, the Israelites are credited with direct assaults on cities, an act that might have involved a siege. Fortifications included walls around cities, towers (Jdg 8:17; 9:46-52) and gates (Jdg 9:40; 16:2-3; 1 Sam 23:7). Biblical descriptions of these assaults suggest that the Israelites used fire to destroy the fortifications and suffocate the inhabitants who took refuge there, as recalled by Abimelech's attacks on Shechem and Tevez, both located in the hill country of Ephraim (Jdg 9:46-53). Some archaeologists claim that the destruction of Hazor at the end of the Late Bronze Age was caused by the Israelites. If this suggestion is correct, Hazor is an example of what the Israelites were capable of.
- Results of War
When armies were victorious, the end of the war was celebrated with song and dance. Miriam celebrated the defeat of the Egyptians with song and dance (Ex 14:20-21); Deborah celebrated the fall of Sisera and the Canaanites with song (Jdg 5), while Jephthah's daughter welcomed her father with dance when he returned from war against the Ammonites (Jdg 11:34). David's victory over Goliath and the subsequent defeat of the Philistines were celebrated with song and dance by Israelite women. However, when Israel was defeated, there was great mourning for the dead (2 Sam 1:17-27).
One way of determining victory was to count the enemy dead. The Egyptians cut off the right hand of the dead enemy and counted the hands at the end of the battle. The Bible mentions nothing of the sort, except that in one case, David's military success is measured by the number of foreskins he brought back to Saul (1 Sam 18:25-27). The victorious army had the right to collect booty The defeated enemies paid dearly for the outcome of the war: cities were burned (Josh 8:28; 11:11,13; Jdg 1:8), their land was salted (Jdg 9:45) and enemy leaders were severely punished (Josh 8:29; 10:26-27; Jdg 1:7; 7:25; 8:16,21; 1 Sam 15:33; 17:51,54; 31:9).
- Bibliography
- Borowski, Oded. Agriculture in Iron Age Israel. Winona Lake Ind.: Eisen-brauns, 1987. Repr., Boston: American Schools of Oriental Research, 2002.
- Borowski, Oded. Every Living Thing: Daily Use of Animals in Ancient Israel. Walnut Creek Calif.: AltaMira, 1998.
- Matthews, Victor H., and Don C. Benjamin. Social World of Ancient Israel 1250-587 BCE. Peabody Mass.: Hendrickson, 1993.
- Meyers, Carol. "The Family in Ancient Israel." Pages 1-47 in Families in Ancient Israel. Louisville: Westminster John Knox, 1997.
- Netzer, Ehud. "Domestic Architecture in the Iron Age." Pages 193-201 in The Architecture of Ancient Israel: From the Prehistoric to the Persian Periods. Aharon Kempinski et Ronny Reich, ed. Jerusalem: Israel Exploration Society, 1991.
- Schloen, J. David. The House of the Father As Fact and Symbol: Patrimonialism in Ugarit and the Ancient Near East. Lawrence E. Stager, ed. Studies in the Archaeology and History of the Levant. Winona Lake, Ind.: Eisenbrauns, 2001.
- Stager, Lawrence E. "The Archaeology of the Family in Ancient Israel." Bulletin of the American Schools of Oriental Research 260 (1985): 1-35.
- Zevit, Ziony. The Religions of Ancient Israel: A Synthesis of Parallactic Approaches. London: Continuum, 2001.
|
Next chapter: Urban life
List of all chapters

(click on map to enlarge)
|